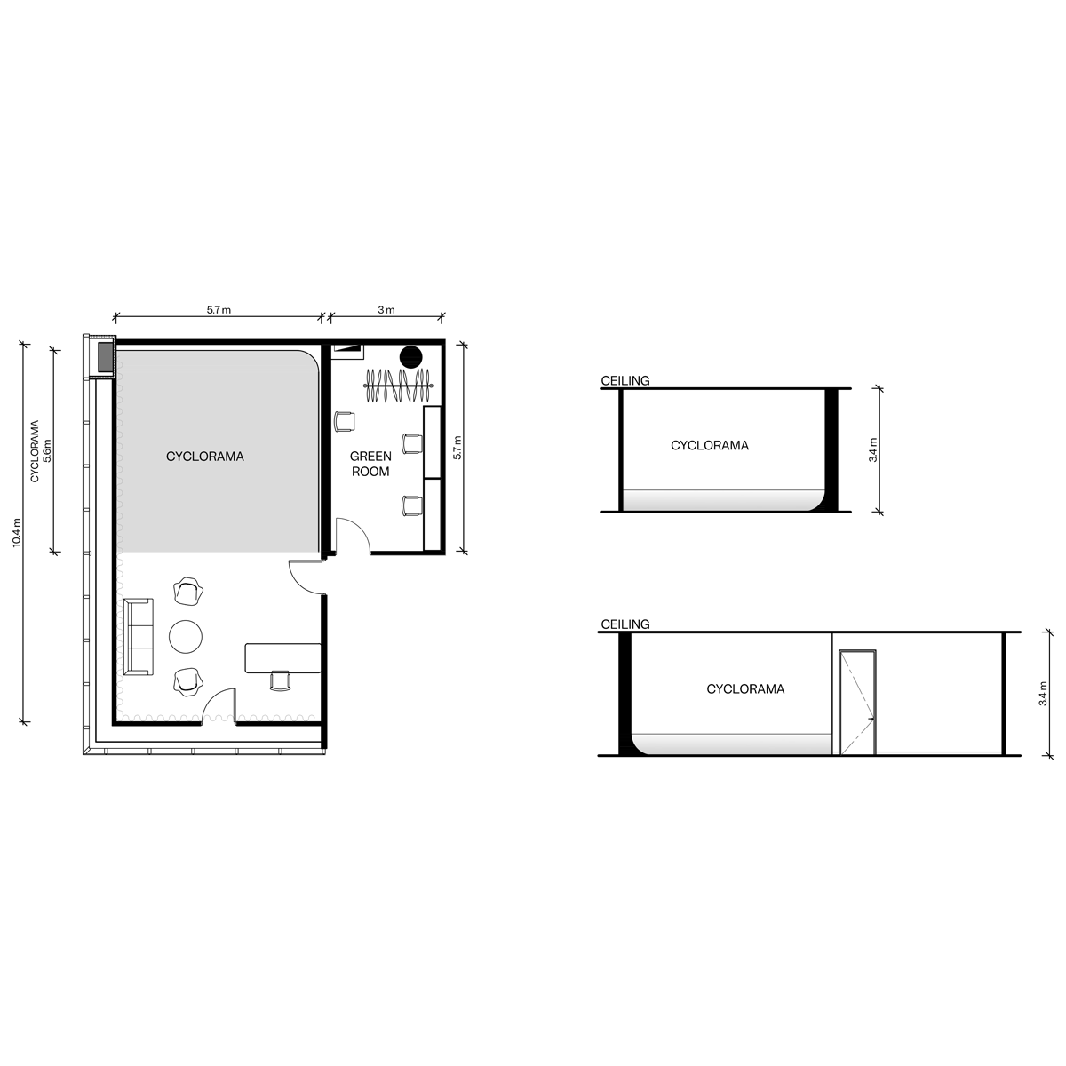
Studio 2 is a sound treated studio designed for small video productions and high quality audio work. It features a corner cyclorama (32m²), acoustic curtains, and Canon’s Multi-Camera Orchestration System (MCO). The studio comes equipped with both audio and video recording equipment, making it ideal for podcasting, vodcasting, and compact video shoots.
Studio |
General Equipment Inclusions |
Podcasting Equipment Inclusions |
Available on Request: |
|
• Corner Cyclorama (32m2) • Sound Treated • Green Room • 2x Hair & Makeup Stations • Control Desk with Canon Reference Monitor • 4K Client Monitor • Bose Bluetooth Sound System • 32-amp Power Outlet • Acoustic Curtains • 2x Parking Spaces • Ducted Air Conditioning & Heating • Water cooler • Wheelchair Accessible • Guest Wi-Fi |
• RØDE Caster Pro II- • RØDE Caster Video & Audio Production Console • 4x RØDE PodMics • 4x RØDE NTH-100 Headphones • RØDE Wireless PRO Premium Wireless Microphone System • Control Desk with Canon Reference Monitor • 4K Client Monitor • LED Lighting • Several furnishing options |
• Clothing Rack • 2x Avenger C-Stand Kits • 4x Manfrotto 004 Light Stands • 2x Poly Boards & Stands • 4x Extension Leads • 2x Powerboards • 4x Shot Bags |
• Selection of Canon EOS Mirrorless Cinema & Camcorder Cameras • 75” Samsung TV on Rolling Stand • Additional Seating for Workshops & Events |
Studio 1 is a multi functional space designed for a range of creative needs. It features a large corner cyclorama (41m²) ideal for photo shoots, a large-format printing station, and a product wall showcasing Canon cameras and lenses. With its generous size, the studio lends itself well to hosting events, workshops, and product demonstrations.
Learn more